Top Konsep Desain Pelat Lantai Jembatan
Oktober 30, 2019
Inspirasi pembahasan desain lantai tentang "Top Konsep Desain Pelat Lantai Jembatan" adalah :
Top Konsep Desain Pelat Lantai Jembatan - Desain Lantai yang satu ini sangat terkenal atas keunikannya. Warna, motif, serta teksturnya dijamin akan memikat setiap pandangan. Bahkan, Anda bisa menentukan sendiri desain pelat lantai jembatan yang diminati yang tentunya akan menjadikan hunian terasa lebih hidup dan tidak monoton. Tak perlu di keseluruhan ruangan, desain lantai yang satu ini bisa Anda pasang di bagian tertentu sebagai pusat perhatian. Anda bisa mengaplikasikan desain pelat lantai jembatan yang dapat memeriahkan suasana. Kombinasi desain lantai akan tampak sentuhan segar di ruangan, termasuk menciptakan mood positif pada siapapun yang berada di ruangan tersebut.
Penampilan yang baik, mungkin tak sedikit dana yang harus anda keluarkan. Asal anda bisa membuat ide-ide tentang desain lantai yang cemerlang, tentunya akan irit anggaran. Apakah anda tertarik dengan desain pelat lantai jembatan?, dengan pembahasan tentang desain lantai dibawah ini, semoga bisa menjadi pilihan inspirasi anda.Informasi yang dapat kami sampaikan kali ini terkait desain lantai dengan judul artikel Top Konsep Desain Pelat Lantai Jembatan berikut ini.

Pelat Monolit vs Pelat Tidak Monolit Sipilpedia . Sumber Gambar : sipilpedia.com

Gambar Teknis Kerja Memasang Besi Tulangan Pelat Lantai . Sumber Gambar : rebanas.com

jeffi andriova Konstruksi Hybrid Jembatan G rtnerplatz . Sumber Gambar : jeffiandriova.blogspot.com

gambardesain3d Jembatan Penghubung Antar Bangunan . Sumber Gambar : gambardesain3d.blogspot.co.id

Gambar Teknis Kerja Memasang Besi Tulangan Pelat Lantai . Sumber Gambar : rebanas.com

Perencanaan Jembatan Tipe Beton Artikel Teknik . Sumber Gambar : arsitekdansipil.blogspot.com

6 detail pondasi b setengah batu kali . Sumber Gambar : pt.slideshare.net

Contoh Perhitungan Konstruksi Rumah 2 Lantai Untuk Imb . Sumber Gambar : arsitekindonesia.id

InfoMedia Digital Inovasi Desain untuk Menutupi Lantai Beton . Sumber Gambar : www.arissaifulloh.com

1 2 Elemen Struktur Bangunan Rumah . Sumber Gambar : bangunanrumah.wordpress.com

jembatan . Sumber Gambar : slideshare.net

Rekomendasi Desain Jembatan Penyeberangan Orang fariable . Sumber Gambar : fariable.blogspot.com

Gambar Teknis Kerja Memasang Besi Tulangan Pelat Lantai . Sumber Gambar : rebanas.com

Pondasi Bangunan 4 Lantai Eiffel Tower Rumahlia com . Sumber Gambar : aparumah.com

Desain Rumah 2 Lantai Di Jembatan Besi Jakarta Barat . Sumber Gambar : indodesigncenter.com

Gambar Teknis Kerja Memasang Besi Tulangan Pelat Lantai . Sumber Gambar : rebanas.com

Besta s Blog SISTEM KONSTRUKSI JEMBATAN SURAMADU . Sumber Gambar : bestananda.blogspot.com

DESAIN JEMBATAN SURAMADU JanGan PernAh MenunDa . Sumber Gambar : arruf.wordpress.com

Mengenal Nama nama dan Jenis Pekerjaan Pada Bangunan Rumah . Sumber Gambar : desain-rumah-sederhana.blogspot.com
.jpg)
MENGENAL TEKNIK STRUKTUR JEMBATAN SANGGAR TEKNIK . Sumber Gambar : sanggartekniksipil.blogspot.com

Rekomendasi Desain Jembatan Penyeberangan Orang fariable . Sumber Gambar : fariable.blogspot.com

Desain Rumah Tinggal Sederhana Dua Lantai Desain Rumah . Sumber Gambar : desainrumahtips.blogspot.com

Perhitungan Penulangan Pelat Lantai Sipilpedia . Sumber Gambar : sipilpedia.com

Desain Metode Konstruksi Jembatan Suramadu Blognya . Sumber Gambar : argajogja.blogspot.com

GAMBAR DESAIN RUMAH SEMI BALI MODERN 10 x 10 METER 2 . Sumber Gambar : www.sanggarteknik.com

Tulay na Kawayan Desain Jembatan Bambu . Sumber Gambar : tulaykawayan.blogspot.com

Kuliah minggu ke 9 struktur jembatan 06 nopb2012 . Sumber Gambar : www.slideshare.net

Iseng Iseng Desain Desain Jembatan Autocad . Sumber Gambar : isengisengdesain.blogspot.co.id

Gambar Teknis Kerja Memasang Besi Tulangan Pelat Lantai . Sumber Gambar : rebanas.com

Desain Rumah Minimalis 2 Lantai . Sumber Gambar : www.matakonstruksi.com

Desain Properti Ruko Terbaru Desain Properti Indonesia . Sumber Gambar : desainpropertiindonesia.blogspot.com

InfoMedia Digital Inovasi Desain untuk Menutupi Lantai Beton . Sumber Gambar : www.arissaifulloh.com

Ide Desain Rumah 2 Lantai Asdar Id . Sumber Gambar : www.asdar.id

4 Lantai Di Jembatan Lima Jakarta Barat Tangerang . Sumber Gambar : jasadesainrumahjakarta.com

InfoMedia Digital Inovasi Desain untuk Menutupi Lantai Beton . Sumber Gambar : www.arissaifulloh.com
pengertian pelat lantai jembatan, perhitungan plat beton jembatan, ukuran plat lantai jembatan, detail pembesian plat injak, perhitungan trotoar jembatan, sistem lantai pada jembatan, gambar pembesian lantai jembatan, perencanaan jembatan beton bertulang pdf,
Top Konsep Desain Pelat Lantai Jembatan - Desain Lantai yang satu ini sangat terkenal atas keunikannya. Warna, motif, serta teksturnya dijamin akan memikat setiap pandangan. Bahkan, Anda bisa menentukan sendiri desain pelat lantai jembatan yang diminati yang tentunya akan menjadikan hunian terasa lebih hidup dan tidak monoton. Tak perlu di keseluruhan ruangan, desain lantai yang satu ini bisa Anda pasang di bagian tertentu sebagai pusat perhatian. Anda bisa mengaplikasikan desain pelat lantai jembatan yang dapat memeriahkan suasana. Kombinasi desain lantai akan tampak sentuhan segar di ruangan, termasuk menciptakan mood positif pada siapapun yang berada di ruangan tersebut.
Penampilan yang baik, mungkin tak sedikit dana yang harus anda keluarkan. Asal anda bisa membuat ide-ide tentang desain lantai yang cemerlang, tentunya akan irit anggaran. Apakah anda tertarik dengan desain pelat lantai jembatan?, dengan pembahasan tentang desain lantai dibawah ini, semoga bisa menjadi pilihan inspirasi anda.Informasi yang dapat kami sampaikan kali ini terkait desain lantai dengan judul artikel Top Konsep Desain Pelat Lantai Jembatan berikut ini.

Pelat Monolit vs Pelat Tidak Monolit Sipilpedia . Sumber Gambar : sipilpedia.com
Design Lantai Jembatan id scribd com
Beban untuk jembatan kelas II diambil sebesar 70 yaitu untuk jembatan permanen Beban roda disebar merata pada lantai kendaraan berukuran 2 25 x 3 5 m2 yaitu pada jarak antara gelagar memanjang dan gelagar melintang
Gambar Teknis Kerja Memasang Besi Tulangan Pelat Lantai . Sumber Gambar : rebanas.com
Perhitungan Struktur Pelat Lantai perencanaanstruktur com
Pelat lantai adalah bagian dari eleman gedung yang berfungsi sebagai tempat berpijak Perencanaan elemen pelat lantai tidak kalah pentingnya dengan perencanaan balok kolom dan pondasi Pelat lantai yang tidak direncanakan dengan baik bisa menyebabkan lendutan dan getaran saat ada beban yang bekerja pada pelat tersebut

jeffi andriova Konstruksi Hybrid Jembatan G rtnerplatz . Sumber Gambar : jeffiandriova.blogspot.com
Perencanaan Teknis Pelat Lantai Jembatan
perencanaan teknis pelat lantai jembatan terdiri dari perhitungan dan analisis pelat lantai jembatan blog ini menjelaskan Metode One Way Slab Pelat Satu Arah Definisi Pelat Satu Arah Dan Dua Arah Sistem perencanaan tulangan Pelat Beton Penulangan Pelat Satu Arah Simbol gambar penulangan Perencanaan Pelat Pelat Satu Arah One Way Slab Penentuan Tebal Pelat Tabel Minimum Pelat

gambardesain3d Jembatan Penghubung Antar Bangunan . Sumber Gambar : gambardesain3d.blogspot.co.id
PERHITUNGAN SLAB LANTAI JEMBATAN
PERHITUNGAN SLAB LANTAI JEMBATAN JEMBATAN SRANDAKAN KULON PROGO D I YOGYAKARTA C 2008 MNI EC A DATA SLAB LANTAI JEMBATAN Tebal slab lantai jembatan ts 0 20 m Tebal lapisan aspal overlay ta 0 10 m Tebal genangan air hujan th 0 05 m Jarak antara balok prategang s 1 80 m Lebar jalur lalu lintas b1 7 00 m Lebar trotoar b2 1 50 m Lebar

Gambar Teknis Kerja Memasang Besi Tulangan Pelat Lantai . Sumber Gambar : rebanas.com
PDF PERHITUNGAN SLAB LANTAI JEMBATAN Al Arif
PERHITUNGAN SLAB LANTAI JEMBATAN JEMBATAN SRANDAKAN KULON PROGO D I YOGYAKARTA C 2008 MNI EC A DATA SLAB LANTAI JEMBATAN b2 b1 b3 b1 b2 trotoar tebal tt aspal tebal ta tt slab tebal ts ts ta deck slab ha sandaran girder hb diafragma s s s s s s s s s Tebal slab lantai jembatan ts 0 20 m Tebal lapisan aspal overlay ta 0 10 m Tebal genangan air hujan

Perencanaan Jembatan Tipe Beton Artikel Teknik . Sumber Gambar : arsitekdansipil.blogspot.com
Contoh cara perhitungan struktur perencanaan jembatan
Pengaruh percepatan dan pengereman dari lalu lintas diperhitungkan sebagai gaya dalam arah memanjang dan dianggap bekerja pada permukaan lantai jembatan Besarnya gaya rem tersebut tergantung dari panjang struktur L yaitu untuk L 40 m 80 m gaya rem 250 kN

6 detail pondasi b setengah batu kali . Sumber Gambar : pt.slideshare.net
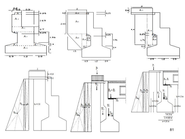
Perhitungan Pilar Jembatan situstekniksipil com
Pada sebuah bangunan konstruksi jembatan khususnya jembatan beton bertulang terdapat beberapa item bangunan seperti pondasi abutment pilar pier head girder gelagar pelat lantai

Contoh Perhitungan Konstruksi Rumah 2 Lantai Untuk Imb . Sumber Gambar : arsitekindonesia.id
KITASIPIL COM Mengenal Pelat Injak Jembatan Structural
Pelat injak adalah suatu konstruksi beton pada jalan pendekat di ujung bibir jembatan oprit yang berada sebelum konstruksi utama jembatan Pelat injak structural transition slab harus dipasang diantara jalan pendekat dan kepala jembatan

InfoMedia Digital Inovasi Desain untuk Menutupi Lantai Beton . Sumber Gambar : www.arissaifulloh.com
Cara Menghitung Struktur Pelat Lantai Artikel Teknik
Pelat lantai adalah bagian dari eleman gedung yang berfungsi sebagai tempat berpijak Perencanaan elemen pelat lantai tidak kalah pentingnya dengan perencanaan balok kolom dan pondasi Pelat lantai yang tidak direncanakan dengan baik bisa menyebabkan lendutan dan getaran saat ada beban yang bekerja pada pelat tersebut

1 2 Elemen Struktur Bangunan Rumah . Sumber Gambar : bangunanrumah.wordpress.com
Civil Engineering Contoh Perhitungan Desain Plat Lantai
Selanjutnya hasil desain ini akan di dokumentasikan ke dalam gambar dimana ketentuan ketentuan dalam penggambaran ini telah di atur oleh SNI 03 2847 2002 yaitu tata cara pembengkokan dan pemutusan yang di atur dalam Pasal 9 1 penentuan panjang penyaluran tulangan untuk tulangan bagi yang di atur dalam Pasal 14 2 penentuan daerah tumpuan yang di atur dalam Pasal 15 2 maka

jembatan . Sumber Gambar : slideshare.net
Rekomendasi Desain Jembatan Penyeberangan Orang fariable . Sumber Gambar : fariable.blogspot.com

Gambar Teknis Kerja Memasang Besi Tulangan Pelat Lantai . Sumber Gambar : rebanas.com
Pondasi Bangunan 4 Lantai Eiffel Tower Rumahlia com . Sumber Gambar : aparumah.com

Desain Rumah 2 Lantai Di Jembatan Besi Jakarta Barat . Sumber Gambar : indodesigncenter.com

Gambar Teknis Kerja Memasang Besi Tulangan Pelat Lantai . Sumber Gambar : rebanas.com

Besta s Blog SISTEM KONSTRUKSI JEMBATAN SURAMADU . Sumber Gambar : bestananda.blogspot.com

DESAIN JEMBATAN SURAMADU JanGan PernAh MenunDa . Sumber Gambar : arruf.wordpress.com

Mengenal Nama nama dan Jenis Pekerjaan Pada Bangunan Rumah . Sumber Gambar : desain-rumah-sederhana.blogspot.com
.jpg)
MENGENAL TEKNIK STRUKTUR JEMBATAN SANGGAR TEKNIK . Sumber Gambar : sanggartekniksipil.blogspot.com

Rekomendasi Desain Jembatan Penyeberangan Orang fariable . Sumber Gambar : fariable.blogspot.com

Desain Rumah Tinggal Sederhana Dua Lantai Desain Rumah . Sumber Gambar : desainrumahtips.blogspot.com

Perhitungan Penulangan Pelat Lantai Sipilpedia . Sumber Gambar : sipilpedia.com
Desain Metode Konstruksi Jembatan Suramadu Blognya . Sumber Gambar : argajogja.blogspot.com

GAMBAR DESAIN RUMAH SEMI BALI MODERN 10 x 10 METER 2 . Sumber Gambar : www.sanggarteknik.com

Tulay na Kawayan Desain Jembatan Bambu . Sumber Gambar : tulaykawayan.blogspot.com

Kuliah minggu ke 9 struktur jembatan 06 nopb2012 . Sumber Gambar : www.slideshare.net

Iseng Iseng Desain Desain Jembatan Autocad . Sumber Gambar : isengisengdesain.blogspot.co.id

Gambar Teknis Kerja Memasang Besi Tulangan Pelat Lantai . Sumber Gambar : rebanas.com

Desain Rumah Minimalis 2 Lantai . Sumber Gambar : www.matakonstruksi.com

Desain Properti Ruko Terbaru Desain Properti Indonesia . Sumber Gambar : desainpropertiindonesia.blogspot.com

InfoMedia Digital Inovasi Desain untuk Menutupi Lantai Beton . Sumber Gambar : www.arissaifulloh.com

Ide Desain Rumah 2 Lantai Asdar Id . Sumber Gambar : www.asdar.id

4 Lantai Di Jembatan Lima Jakarta Barat Tangerang . Sumber Gambar : jasadesainrumahjakarta.com

InfoMedia Digital Inovasi Desain untuk Menutupi Lantai Beton . Sumber Gambar : www.arissaifulloh.com